咨询服务热线:
18003716036
《低碳多能互补储能系统设计与安装》(图集编号:25CK531)【全文附高清无水印PDF版下载】
图集编号:25CK531
图集名称:低碳多能互补储能系统设计与安装
图集类型:国标图集
发布日期:2025-09-01
实施日期:2025-09-01
图集格式:
PDF版 PDF文档是否有水印:无水印
PDF文档大小:17.9 M PDF文档页数:51 P(页)
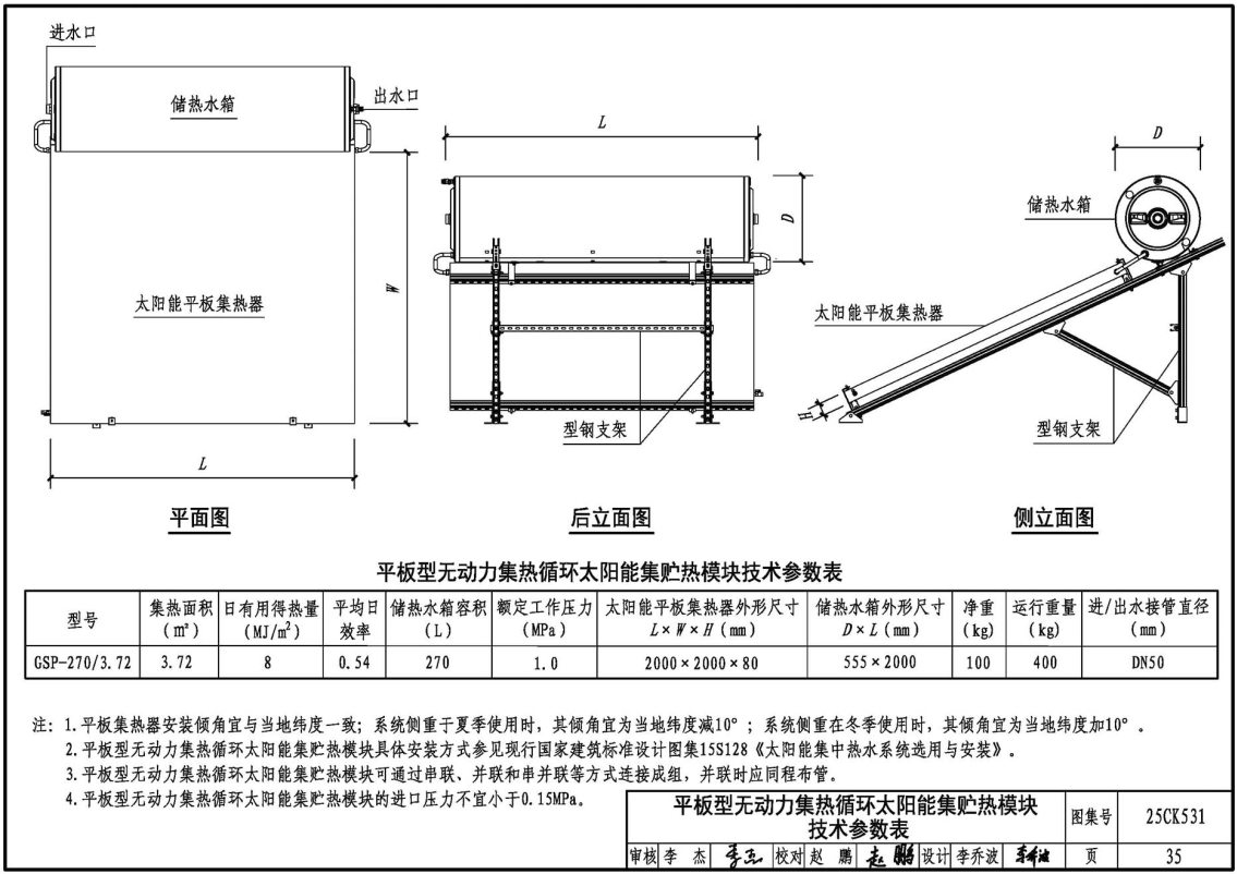
图集简介:本图集适用于新建、扩建或改建的民用建筑中,集中热水供应和供暖空调系统采用低碳多能互补储能系统作为冷热源的设计与安装。本图集包括低碳多能互补储能系统原理、系统选用及设计计算、设备选用及安装、运行维护、工程实例等内容。


本次捐赠数额为:10 元 【点击此处微信扫码支付】
敬请务必注意!!!如您是使用手机端浏览器打开此网页,请务必选择支付宝支付;如果您使用的是电脑端浏览器,选择任一支付方式皆可。如无法正常支付请及时联系页脚微信。